Espectacular casa moderna con piscina en Sant Cugat del Vallès

Sant Cugat del Vallès - REF. 18006

Ref. 18006 404 m2 6 4 2
venta: 1.950.000 

Espectacular casa unifamiliar en Sant Cugat del Vallès, construida en 2007, de estilo moderno y acabados elegantes, con 404 m² construidos sobre una parcela de 589 m². Una vivienda amplia, luminosa y funcional, pensada para disfrutar del confort y la calidad de vida en una de las zonas más demandadas del municipio.


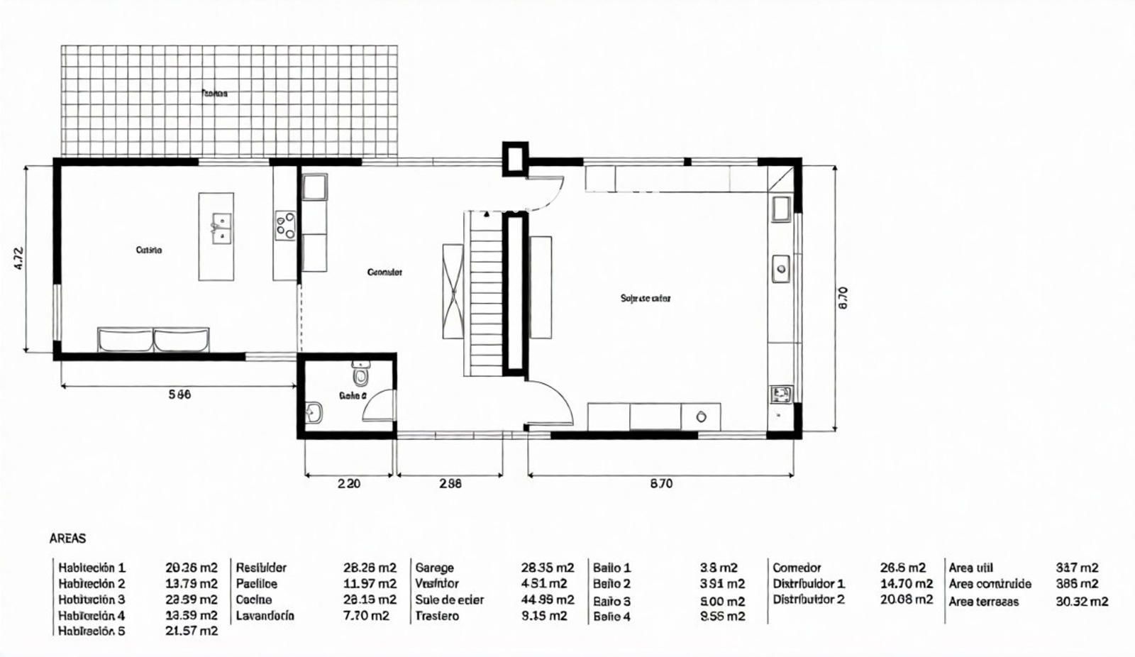
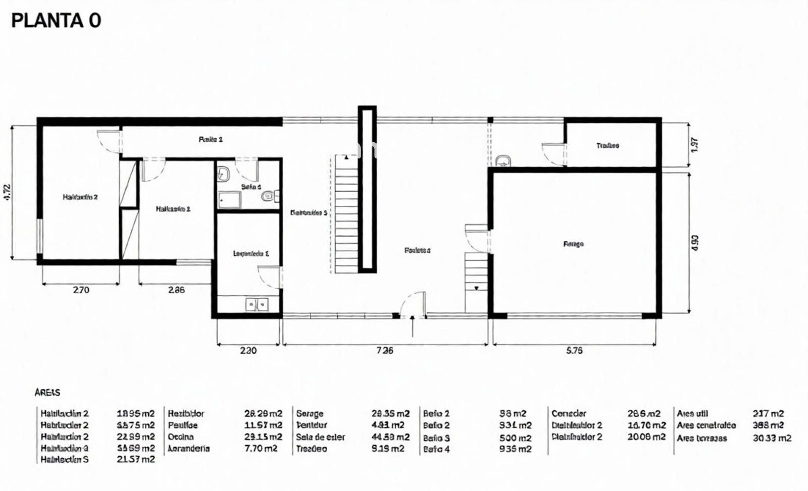
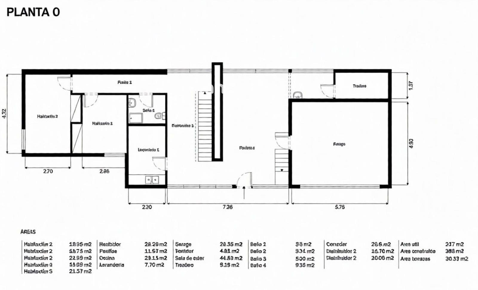
Al entrar en la vivienda nos recibe un amplio recibidor que aporta sensación de amplitud desde el primer momento. En esta planta encontramos dos habitaciones dobles y un baño completo con ducha. Uno de sus grandes valores es la excelente capacidad de almacenamiento, con múltiples armarios integrados de forma discreta y funcional.


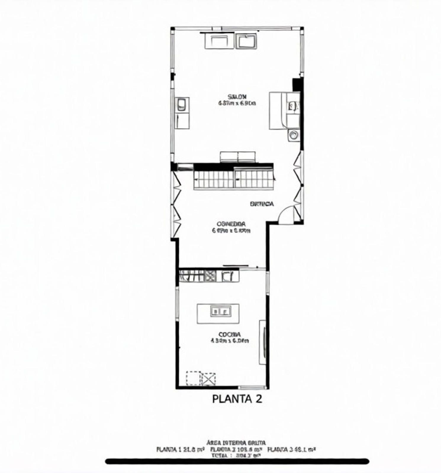
En la primera planta se ubica la zona de día, con un impresionante salón-comedor con amplios ventanales que inundan el espacio de luz natural y ofrecen salida directa a la terraza con piscina privada, recientemente remodelada. Un entorno ideal para disfrutar en familia o con amigos. En esta misma planta encontramos una cocina independiente con isla central, espaciosa y muy funcional, con acceso directo a la zona de barbacoa y un comedor exterior, además de un aseo de cortesía.


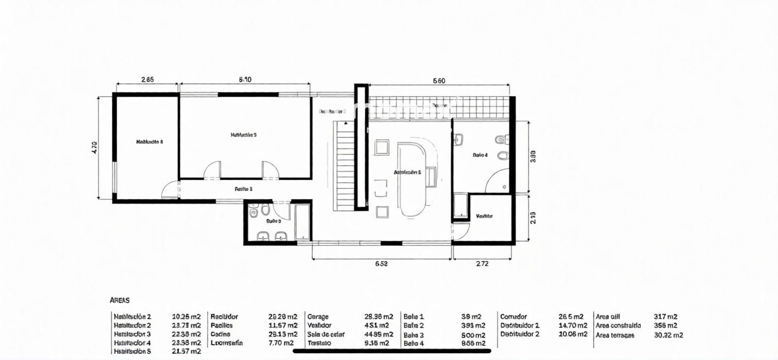
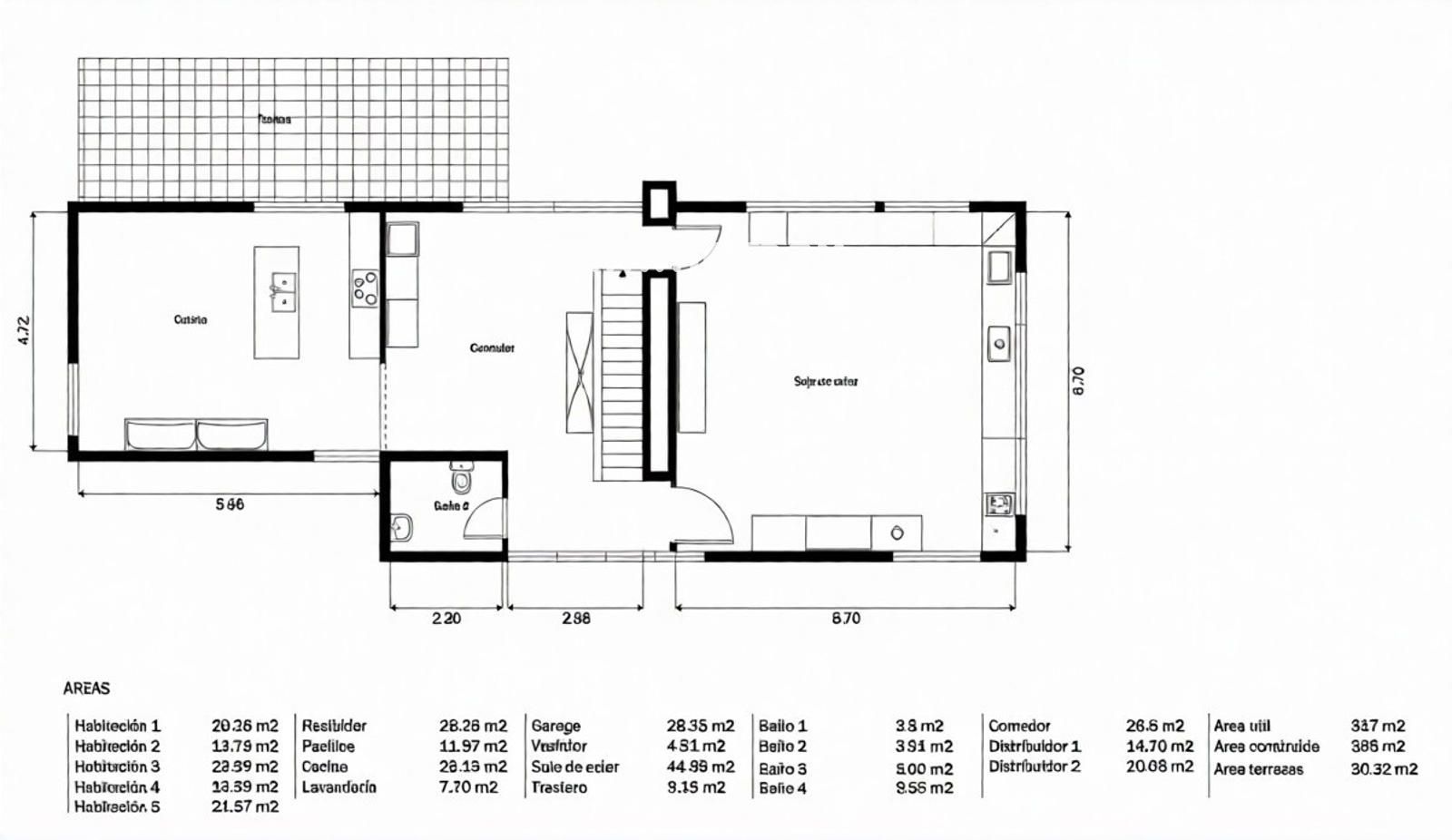
La segunda planta alberga la zona de descanso, donde se encuentra la suite principal con baño en suite con bañera, zona de vestidor y salida a una agradable terraza privada. En esta misma planta hay además dos habitaciones adicionales, también amplias y muy luminosas, y un baño completo que da servicio a estas estancias. Todas las habitaciones destacan por sus grandes ventanales y excelente entrada de luz natural.


La vivienda dispone de piscina privada y garaje para dos vehículos. Está equipada con aire acondicionado central y calefacción por suelo radiante mediante gas natural, garantizando confort durante todo el año. Cuenta con chimenea de leña y preinstalación para placas solares, mientras que su fachada ventilada, además de un acabado moderno y elegante, mejora el aislamiento térmico y acústico, aumentando el confort y la eficiencia energética.


Los suelos de la terraza, de madera tropical, junto con su cuidada carpintería exterior, refuerzan el estilo moderno de la vivienda y la calidad de sus acabados, ofreciendo un hogar elegante y confortable.


Una propiedad que combina amplitud, luminosidad, eficiencia y comodidad, ideal para familias que buscan espacio y tranquilidad sin renunciar a la proximidad de todos los servicios y conexiones que ofrece Sant Cugat del Vallès.


Cédula de habitabilidad: CHB017**


Certificado de eficiencia energética: ND76P**


Por motivos de seguridad y confidencialidad, los datos completos se facilitarán exclusivamente bajo petición previa y tras la formalización de un acuerdo.


*En el precio de venta están incluidos los honorarios de la agencia inmobiliaria, no incluye impuestos ni gastos, los precios de la oferta pueden ser modificados o darse de baja sin previo aviso. Se debe añadir a la compra en viviendas de segunda mano el ITP, en viviendas de Obra Nueva el IVA y AJD y en ambos casos los honorarios de notaría y registro, todos los datos expuestos son meramente orientativos."


En Immomax Eltaservei tenemos un objetivo muy claro de cara a nuestros clientes, y es el de poder acompañarte de principio a fin en la maravillosa aventura de encontrar tu futuro hogar, con un enfoque muy claro, priorizando tu satisfacción y calidad de tiempo, centrándonos en tus necesidades y poniendo en marcha estrategias consolidadas para que el proceso de compra-venta sea lo más cómodo y seguro para ti.

Servicios:

- Ofrecemos servicio de relocation, soluciones dinámicas y proactivas para la rápida integración en el nuevo destino.

- Asesoramos y gestionamos tu hipoteca ayudándote con la documentación y todos los tramites.

- Asesoramiento en todo tipo de reformas, obra nueva, diseño de interiores.

Immomax Eltaservei se diferencia en los más altos estándares de transparencia, honestidad y discreción en nuestro trabajo. Nuestro compromiso radica en la satisfacción de nuestros clientes, poniendo a su alcance toda la ayuda necesaria para hacer de su operación inmobiliaria todo un éxito.

Nos apasiona nuestra profesión. ¡Trabajamos para conseguir tu sueño!

Immomax Eltaservei siempre a vuestro a lado...

AICAT N.º 13.105

Índice de alquiler

Precio Venta 1.950.000 €
Precio/m² 4.827
Año de construcción 2007
Construidos 404 m2
Útiles 334 m2
Parcela 589 m2
Dormitorios 6
Baños 4
Amueblado
Cocina Amueblada
Calefacción Suelo Radiante
Trastero
Garajes 2
Estado Buen estado
Tipo de suelo Madera natural
Aire acondicionado
Piscina comunitaria
Calificación Energética (D) VER
Luz

Inmuebles similares:

 
 380 m2  6  5

Esta residencia es una oportunidad única para adquirir un verdadero refugio que aúna historia, diseño y confort en el enclave más deseado de Vallvidrera, disfrutando de la máxima privacidad, vistas despejadas y una conexión inigualable con la naturaleza circundante.

En cumplimiento de la Ley 3/2917 del 13 de febrero de 2018 del Código Civil de Catalunya, por el que se aprueba el Reglamento de Información al Consumidor en la compraventa y arrendamiento de viviendas, se informa al cliente que los gastos notariales, registrales e impuestos que le sean de aplicación (ITP o IVA + AJD) y otros gastos inherentes a la compraventa no están incluidos en el precio. Todos los datos y fotografías expuestas son meramente orientativos, no tiene carácter de oferta ni valor precontractual, contractual o de garantía, y no implica recomendación de compra. Cédula de habitabilidad número CHBxxxx Disponible para su consulta. AICAT 1160

1.750.000 €
 
 434 m2  6  4
Casa en venta en Castelldefels, con 434 m2, 6 habitaciones y 4 baños, Piscina, Garaje, Trastero, Amueblado y Aire acondicionado.
1.700.000 €
Contacta con tu asesor
Tatyana Moyal (Venta)
Solicita información

Si deseas más información sobre esta propiedad, por favor, rellena el formulario: