Amplio dúplex en el centro de Castelldefels

Castelldefels - REF. 18036

Ref. 18036 107 m2 3 2 3
venta: 499.000 

En una finca de 2008 con ascensor, se encuentra este luminoso dúplex de 107 m² situado en pleno centro de Castelldefels, ideal para quienes buscan comodidad y una ubicación privilegiada con todos los servicios a pocos pasos.


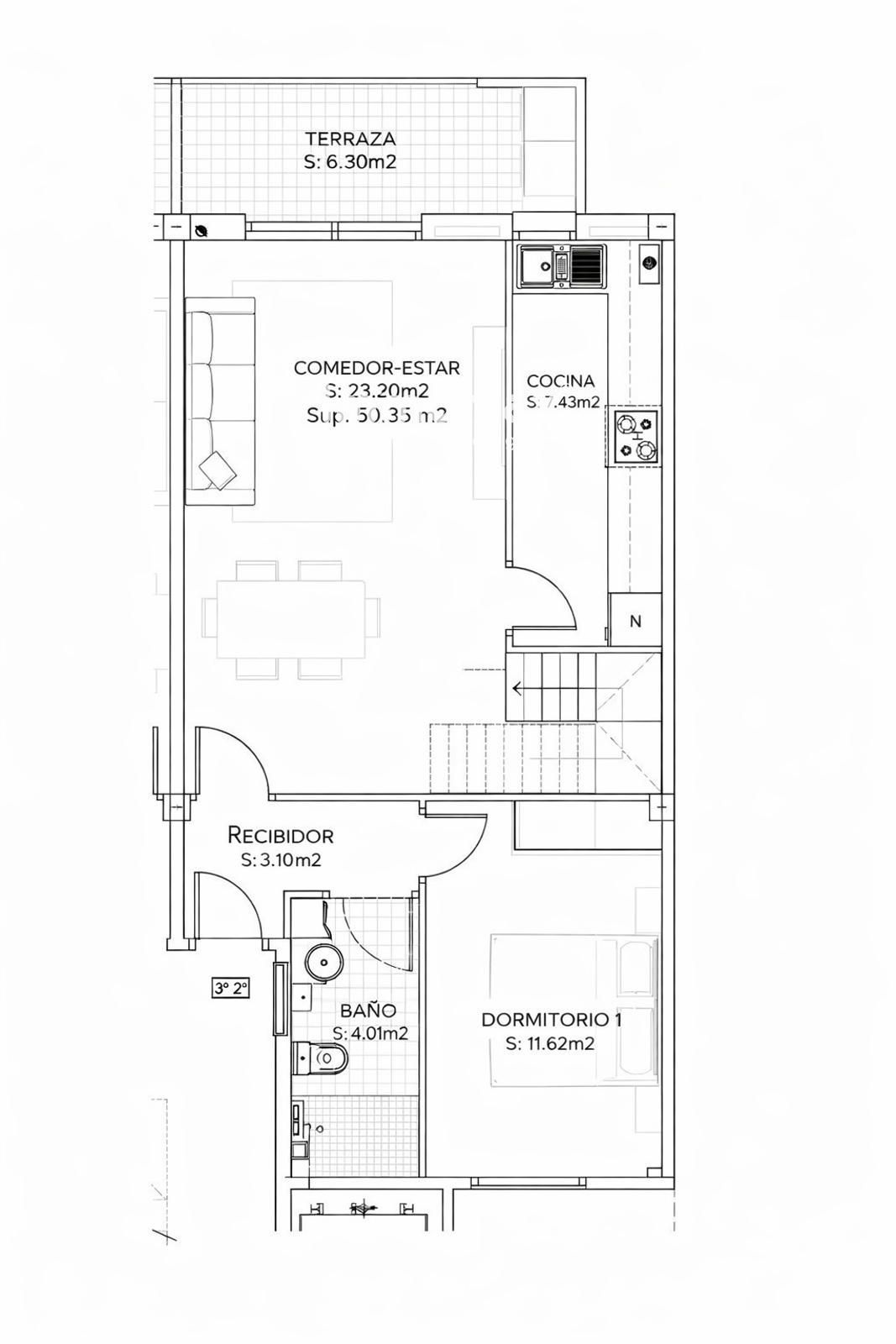
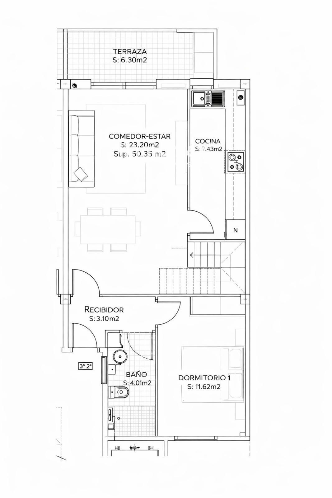
La vivienda, con orientación sur, disfruta de abundante luz natural durante todo el día. En la planta principal encontramos un amplio salón-comedor con cocina abierta, que crea un espacio moderno y funcional con acceso a un agradable balcón. Esta planta se completa con una habitación doble y un baño completo con ducha.


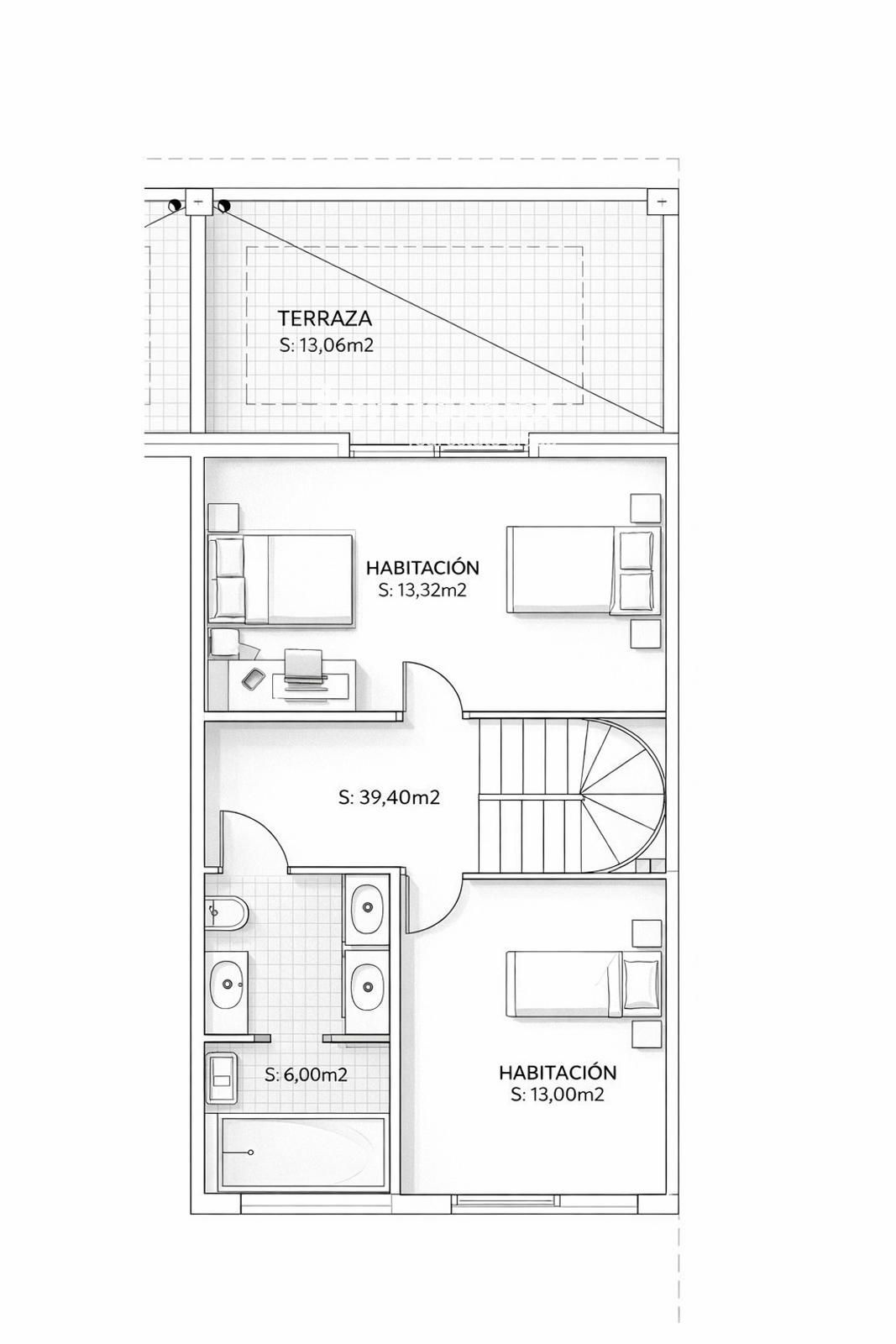
En la planta superior se distribuyen dos habitaciones dobles y un segundo baño completo. Uno de los dormitorios tiene acceso directo a una terraza privada, perfecta para relajarse o disfrutar del aire libre.


La vivienda dispone de calefacción y se encuentra en excelente estado, lista para entrar a vivir.


Una oportunidad única para vivir con luz y confort en el corazón de Castelldefels. Contáctanos para más información o para concertar una visita.


*En el precio de venta están incluidos los honorarios de la agencia inmobiliaria, no incluye impuestos ni gastos, los precios de la oferta pueden ser modificados o darse de baja sin previo aviso. Se debe añadir a la compra en viviendas de segunda mano el ITP, en viviendas de Obra Nueva el IVA y AJD y en ambos casos los honorarios de notaría y registro, todos los datos expuestos son meramente orientativos."


En Immomax Eltaservei tenemos un objetivo muy claro de cara a nuestros clientes, y es el de poder acompañarte de principio a fin en la maravillosa aventura de encontrar tu futuro hogar, con un enfoque muy claro, priorizando tu satisfacción y calidad de tiempo, centrándonos en tus necesidades y poniendo en marcha estrategias consolidadas para que el proceso de compra-venta sea lo más cómodo y seguro para ti.


Servicios:


- Ofrecemos servicio de relocation, soluciones dinámicas y proactivas para la rápida integración en el nuevo destino.


- Asesoramos y gestionamos tu hipoteca ayudándote con la documentación y todos los tramites.


- Asesoramiento en todo tipo de reformas, obra nueva, diseño de interiores.


Immomax Eltaservei se diferencia en los más altos estándares de transparencia, honestidad y discreción en nuestro trabajo. Nuestro compromiso radica en la satisfacción de nuestros clientes, poniendo a su alcance toda la ayuda necesaria para hacer de su operación inmobiliaria todo un éxito.


Nos apasiona nuestra profesión. ¡Trabajamos para conseguir tu sueño!


Immomax Eltaservei siempre a vuestro a lado...


AICAT N.º 13.105


Índice de alquiler

Precio Venta 499.000 €
Precio/m² 4.664
Cédula de Habitabilidad CHB07695325001
Construidos 107 m2
Dormitorios 3
Baños 2
Altura/Planta 3
Ascensor
Calificación Energética (E) VER
Contacta con tu asesor
Tatyana Moyal
Solicita información

Si deseas más información sobre esta propiedad, por favor, rellena el formulario: