Solar industrial en venta – Vilafranca del Penedès (Distrito Barceloneta - Molí d’en Rovira)

Vilafranca del Penedès - REF. 17492

Ref. 17492
venta: 141.000 

¡Oportunidad única para inversores y promotores!

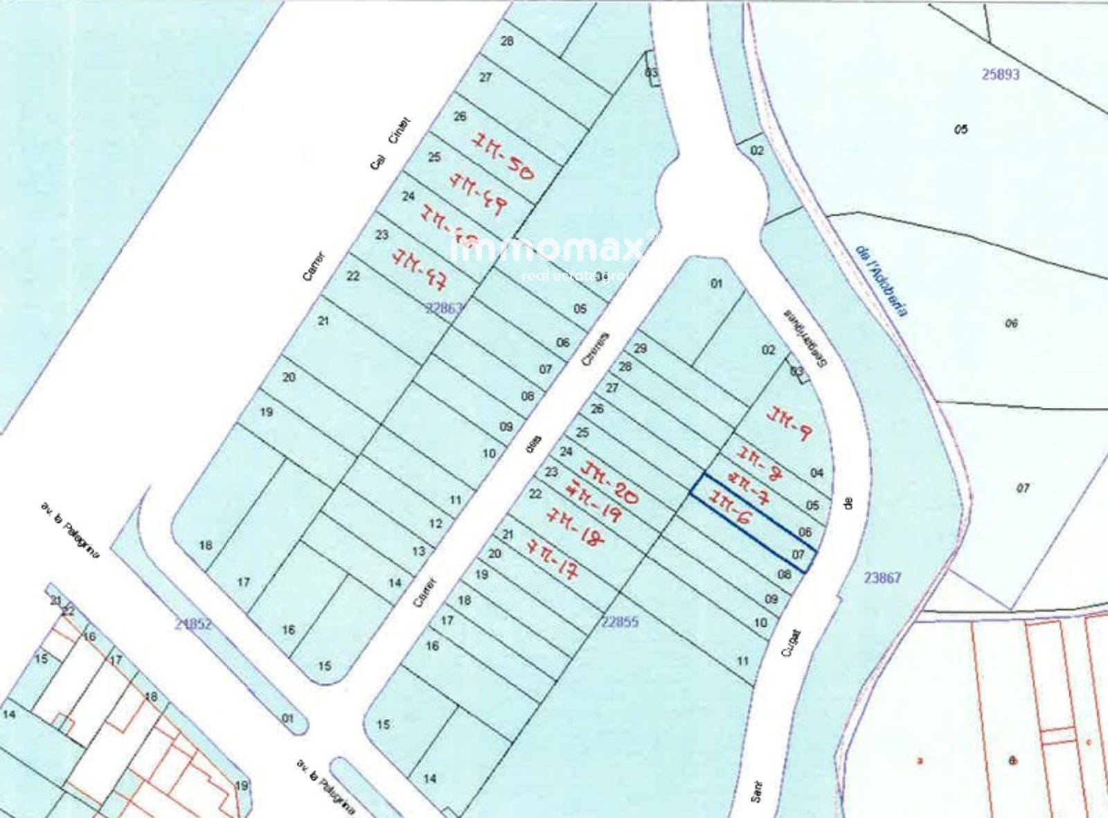
Se vende amplio solar industrial en la zona de Cirerers, en Vilafranca del Penedès (Barcelona). Se compone de varias parcelas, con posibilidad de adquisición conjunta o individual, adaptándose a todo tipo de necesidades.

La parcela cuenta con una superficie de 549,53  m², con una edificabilidad de 349,52 m2 de techo en planta baja + 104,86 m² de techo en planta piso.

La ubicación es estratégica, con excelente conectividad a las principales vías de transporte: AP‑7, C‑15 y N‑340. Esto lo convierte en una opción ideal para el desarrollo de naves industriales, centros logísticos o proyectos corporativos.

Zona en expansión, con alta demanda y potencial de crecimiento industrial y comercial. ¡Perfecta para quienes buscan invertir en un entorno con futuro!.

📍 Solicita más información y asegura tu posición en una de las áreas industriales más prometedoras del Penedès.


*En el precio de venta están incluidos los honorarios de la agencia inmobiliaria, no incluye impuestos ni gastos, los precios de la oferta pueden ser modificados o darse de baja sin previo aviso. Se debe añadir a la compra en viviendas de segunda mano el ITP, en viviendas de Obra Nueva el IVA y AJD y en ambos casos los honorarios de notaría y registro, todos los datos expuestos son meramente orientativos."

Immomax Eltaservei tenemos un objetivo muy claro de cara a nuestros clientes, y es el de poder acompañarte de principio a fin en la maravillosa aventura de encontrar tu futuro hogar, con un enfoque muy claro, priorizando tu satisfacción y calidad de tiempo, centrándonos en tus necesidades y poniendo en marcha estrategias consolidadas para que el proceso de compra-venta sea lo más cómodo y seguro para ti.

Servicios:

- Ofrecemos servicio de relocation, soluciones dinámicas y proactivas para la rápida integración en el nuevo destino.
- Asesoramos y gestionamos tu hipoteca ayudándote con la documentación y todos los tramites.
- Asesoramiento en todo tipo de reformas, obra nueva, diseño de interiores.
Immomax Eltaservei se diferencia en los más altos estándares de transparencia, honestidad y discreción en nuestro trabajo. Nuestro compromiso radica en la satisfacción de nuestros clientes, poniendo a su alcance toda la ayuda necesaria para hacer de su operación inmobiliaria todo un éxito.
Nos apasiona nuestra profesión. ¡Trabajamos para conseguir tu sueño!
Immomax Eltaservei siempre a vuestro a lado...

AICAT N.º 13.105

Índice de alquiler

Precio Venta 141.000 €
Precio/m² 255 €/m²
Parcela 553 m2
Edificables 455 m2
Repercusión m² edificables 309,89 €/m²
Galería

Inmuebles similares:

 
   0  0
Ático en venta en Canovelles.
119.000 €
 
 50 m2  2  1
Terreny edificable a carrer sense sortida: Tranquil·litat i vistes a Vallserena con mucho sol. Construcción existente de 50 m2 con luz, agua y alcantarillado. 
118.000 €
Contacta con tu asesor
Christian Rivi (Venta)
Solicita información

Si deseas más información sobre esta propiedad, por favor, rellena el formulario: